Nội dung toàn văn Tiêu chuẩn quốc gia TCVN 6359-1:2008 (ISO 702-1 : 2001) về Máy công cụ - Kích thước lắp nối của đầu trục chính và mâm cặp - Phần 1: Nối ghép côn
TIÊU CHUẨN QUỐC GIA
TCVN 6359-1 : 2008
ISO 702-1 : 2001
MÁY CÔNG CỤ - KÍCH THƯỚC LẮP NỐI CỦA ĐẦU TRỤC CHÍNH VÀ MÂM CẶP - PHẦN 1: NỐI GHÉP CÔN
Machine tools - Connecting dimensions of spindle noses and work holding chucks - Part 1: Conical connection
Lời nói đầu
TCVN 6359-1 : 2008; TCVN 6359-2 : 2008; TCVN 6359-3 : 2008; TCVN 6359-4 : 2008 thay thế cho TCVN 6359 : 1998.
TCVN 6359-1 : 2008 hoàn toàn tương đương ISO 702-1 : 2001.
TCVN 6359-1 : 2008 do Ban kỹ thuật tiêu chuẩn Quốc gia TCVN/TC39 Máy công cụ biên soạn, Tổng cục Tiêu chuẩn Đo lường Chất lượng đề nghị, Bộ Khoa học và Công nghệ công bố.
TCVN 6359 : 2008 Máy công cụ - Kích thước lắp nối của đầu trục chính và mâm cặp gồm 4 phần sau:
TCVN 6359-1 : 2008 (ISO 702-1 : 2001) - Phần 1: Nối ghép côn; TCVN 6359-2 : 2008 (ISO 702-2 : 2007) - Phần 2: Kiểu cam khoá; TCVN 6359-3 : 2008 (ISO 702-3 : 2007) - Phần 3: Kiểu chốt chặn;
TCVN 6359-4 : 2008 (ISO 702-4 : 2004) - Phần 4: Nối ghép trụ.
MÁY CÔNG CỤ - KÍCH THƯỚC LẮP NỐI CỦA ĐẦU TRỤC CHÍNH VÀ MÂM CẶP - PHẦN 1: NỐI GHÉP CÔN
Machine tools - Connecting dimensions of spindle noses and work holding chucks – Part 1 : Conical connection
1. Phạm vi áp dụng
Tiêu chuẩn này quy định kích thước lắp lẫn của đầu trục chính côn của máy tiện và mặt bích tương ứng của mâm cặp.
CHÚ THÍCH : Các kiểu “cam khoá ”, “chốt chặn” và kiểu trụ quy định tương ứng trong TCVN 6359-2; TCVN 6359-3 và TCVN 6359-4.
2. Khả năng lắp lẫn
Trong tiêu chuẩn này kích thước và dung sai tính bằng milimét.
Toàn bộ các giá trị khác nhau của các kích thước và ren vít tính bằng milimét và inch. Kích thước lắp nối của mâm cặp trong Bảng 1 và Bảng 2 có thể chuyển đổi từ milimét sang inch (xem chú thích a dưới Bảng 2).
3. Kích thước lắp lẫn
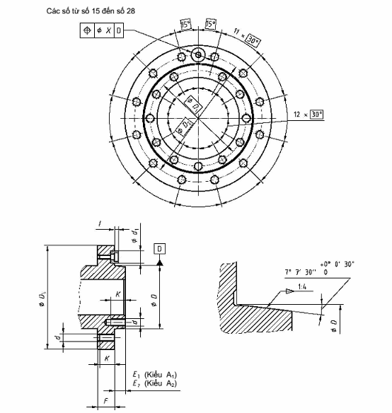
3.1. Đầu trục chính
Xem Hình 1 và Bảng 1
Kiểu A1 : Có hai vòng bulông đường kính D1 và D2.
Kiểu A2 : Có một vòng bulông ngoài đường kính D2.
(Kiểu A2 dùng cho đầu trục chính số 3 và số 4; kiểu A1 và kiểu A2 dùng cho đầu trục chính từ số 5 đến số 28).

Hình 1 – Đầu trục chính

a Tất cả các lỗ cố định
Hình 1 – Đầu trục chính (kết thúc)
|
Kích thước |
Số |
|||||||||
|
3 |
4 |
5 |
6 |
8 |
11 |
15 |
20 |
28 |
||
|
D |
Danh nghĩa |
53,975 |
63,513 |
82,563 |
106,375 |
139719 |
196.869 |
285,775 |
412.775 |
584,225 |
|
Dung sai |
|
|
|
|
|
|
|
|
|
|
|
D1 |
— |
— |
61,9 |
82,6 |
111,1 |
165,1 |
247.6 |
368,3 |
530.2 |
|
|
d2 |
70.6 |
82,6 |
104,8 |
133,4 |
171,4 |
235 |
330,2 |
463,6 |
647.6 |
|
|
D3 |
92 |
108 |
133 |
165 |
210 |
280 |
380 |
520 |
725 |
|
|
d |
M10 |
M10 |
M10 |
M12 |
M16 |
M20 |
M24 |
M24 |
M30 |
|
|
d1 H8/h8 |
— |
14,25 |
15,9 |
19,05 |
23.8 |
28.6 |
34,9 |
41,3 |
50.8 |
|
|
E1 (Kiểu A1)) |
— |
- |
14,288 |
15,875 |
17,462 |
19,050 |
20,638 |
22.225 |
25.400 |
|
|
E1 (Kiểu A2)) |
11 |
11 |
13 |
14 |
16 |
18 |
19 |
21 |
24 |
|
|
F |
16 |
20 |
22 |
25 |
28 |
35 |
42 |
48 |
56 |
|
|
I |
— |
5 |
5 |
5 |
6 |
8 |
8 |
8 |
8 |
|
|
K |
14 |
17 |
19 |
22 |
25 |
32 |
37 |
42 |
50 |
|
|
W và X |
0.2 |
0,2 |
0,2 |
0,2 |
0.2 |
0,2 |
0,3 |
0.3 |
0,3 |
|
|
CHÚ THÍCH : Dung sai chung cho các kích thước không ghi dung sai : ± 0,4 mm. |
||||||||||
Bảng 1 – Kích thước đầu trục chính
CHÚ THÍCH : Dung sai chung cho các kích thước không ghi dung sai : ± 0,4 mm.
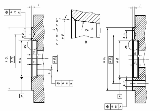
3.2 Kích thước mặt nối ghép
Xem Hình 2 và Bảng 2

|
Với vòng bulông trong (để lắp trên đầu trục chính A1 bằng vòng bulông trong của chúng) |
Với vòng bulông ngoài (để lắp với đầu trục chính A1 hoặc A2 bằng vòng bulông ngoài của chúng) |
Hình 2 – Kích thước mặt nối ghép
Bảng 2 - Kích thước mặt nối ghép
|
Kích thước |
Số |
|||||||||
|
3 |
4 |
5 |
6 |
8 |
11 |
15 |
20 |
28 |
||
|
D |
Danh nghĩa |
53,975 |
63,513 |
82,563 |
106,375 |
139,719 |
196.869 |
285,775 |
412.775 |
584,225 |
|
Dung sai |
|
|
|
|
|
|
|
|
|
|
|
D1 |
— |
— |
61,9 |
82,6 |
111,1 |
165,1 |
247.6 |
368,3 |
530.2 |
|
|
d2 |
70.6 |
82,6 |
104,8 |
133,4 |
171,4 |
235 |
330,2 |
463,6 |
647.6 |
|
|
D3 |
92 |
108 |
133 |
165 |
210 |
280 |
380 |
520 |
725 |
|
|
d |
12 |
12 |
12 |
14 |
18 |
22 |
25,5a |
27a |
33 |
|
|
d1 |
— |
14,7 |
16,3 |
19,45 |
24,2 |
29,4 |
35,7 |
42,1 |
51.6 |
|
|
E1 (Kiểu A1)) |
— |
- |
14,288 |
15,875 |
17,462 |
19,050 |
20,638 |
22.225 |
25.400 |
|
|
E2 (Kiểu A2)) b |
— |
— |
15 |
16 |
18 |
20 |
21 |
23 |
26 |
|
|
G |
10 |
10 |
12 |
13 |
14 |
16 |
17 |
19 |
22 |
|
|
I |
— |
6,5 |
6,5 |
6,5 |
8 |
10 |
10 |
10 |
10 |
|
|
W và X |
0,2 |
0,2 |
0,2 |
0,2 |
0,2 |
0,2 |
0,3 |
0,3 |
0,3 |
|
|
CHÚ THÍCH : Dung sai chung cho các kích thước không ghi dung sai : ± 0,4 mm. |
||||||||||
|
a Các kích thước chuyển đổi được giữa hệ Inch và hệ mét b E2 có thể thay cho E1 chỉ khi bề mặt bích đủ cứng vững không gây ra uốn cong khi vít được vặn chặt vào vòng bulông trong. |
||||||||||
THƯ MỤC TÀI LIỆU THAM KHẢO
[1] TCVN 6359 -2 : 2008 (ISO 702-2: 2007) Máy công cụ - Kích thước lắp nối của đầu trục chính và mâm cặp - Phần 2: Kiểu cam khoá;
[2] TCVN 6359 -3 : 2008 (ISO 702-3: 2007) Máy công cụ - Kích thước lắp nối của đầu trục chính và mâm cặp - Phần 3 : Kiểu chốt chặn;
[3] TCVN 6359 - 4 : 2008 (ISO 702-4: 2004) Máy công cụ - Kích thước lắp nối của đầu trục chính và mâm cặp - Phần 4 : Nối ghép trụ.