Nội dung toàn văn Tiêu chuẩn Việt Nam TCVN 7571-1:2006 (ISO 657-1 : 1989) về thép hình cán nóng - Phần 1: Thép góc cạnh đều - Kích thước do Bộ Khoa học và Công nghệ ban hành
TIÊU CHUẨN VIỆT NAM
TCVN 7571-1 : 2006 (ISO 657-1 : 1989);
TCVN 7571-2 : 2006 (ISO 657-2 : 1989);
TCVN 7571-5 : 2006 (ISO 657-5 : 1976);
TCVN 7571-11 : 2006 (ISO 657-11 : 1980);
TCVN 7571-15 : 2006 (ISO 657-15 : 1980);
TCVN 7571-16 : 2006 (ISO 657-16 : 1980).
THÉP HÌNH CÁN NÓNG –
KÍCH THƯỚC – DUNG SAI – ĐẶC TÍNH MẶT CẮT
Hot – rolled steel sections
Dimensions – Tolerances – Sectional properties
Mục lục
|
·
TCVN 7571-1 : 2006 |
Thép hình cán nóng - |
|
·
TCVN 7571-2 : 2006 |
Thép hình cán nóng- |
|
·
TCVN 7571-5 : 2006 |
Thép hình cán nóng - |
|
·
TCVN 7571-11 : 2006 |
Thép hình cán nóng- |
|
·
TCVN 7571-15 : 2006 |
Thép hình cán nóng - |
|
·
TCVN 7571-16 : 2006 |
Thép hình cán nóng - |
Lời nói đầu
TCVN 7571-1 : 2006 thay thế cho điều 1, 2 của TCVN 1656 : 1993;
TCVN 7571-1 : 2006 hoàn toàn tương đương ISO 657-1 : 1989;
TCVN 7571-2 : 2006 thay thế cho điều 1, 2 của TCVN 1657 : 1993;
TCVN 7571-2 : 2006 hoàn toàn tương đương ISO 657-2 : 1989;
TCVN 7571-5 : 2006 thay thế các điều từ 3 đến 9 của TCVN 1656 : 1993 và của TCVN 1657 : 1993;
TCVN 7571-5 : 2006 hoàn toàn tương đương ISO 657-5 : 1976;
TCVN 7571-11 : 2006 thay thế cho TCVN 1654 : 1993;
TCVN 7571-11 : 2006 hoàn toàn tương đương ISO 657-11 : 1980;
TCVN 7571-15 : 2006 thay thế cho TCVN 1655 : 1993;
TCVN 7571-15 : 2006 hoàn toàn tương đương ISO 657-15 : 1980;
TCVN 7571-16 : 2006 hoàn toàn tương đương ISO 657-16 : 1980;
TCVN 7571-1 : 2006; TCVN 7571-2 : 2006; TCVN 7571-5 : 2006; TCVN 7571-11 : 2006; TCVN 7571-15 : 2006; TCVN 7571-16 : 2006 do Ban Kỹ thuật Tiêu chuẩn TCVN/TC 17 Thép biên soạn, Tổng cục Tiêu chuẩn Đo lường Chất lượng đề nghị, Bộ Khoa học và Công nghệ ban hành.
THÉP HÌNH CÁN NÓNG –
PHẦN 1: THÉP GÓC CẠNH ĐỀU – KÍCH THƯỚC
Hot-rolled steel sections
Part 1: Equal – leg angles – Dimensions
1. Phạm vi áp dụng
Tiêu chuẩn này qui định kích thước của thép góc cạnh đều cán nóng
2. Tài liệu viện dẫn
TCVN 7571-5 : 2006 (ISO 657-5 : 1976), Thép hình cán nóng – Phần 5: Thép góc cạnh đều và không đều – Dung sai hệ mét và hệ insơ.
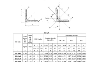
3. Kích thước
3.1. Kích thước của thép góc cạnh đều cho trong Bảng 1. Các kích thước ưu tiên được in đậm
3.2. Bán kính lượn trong cho trong Bảng 1 chỉ để tham khảo.
3.3. Bán kính lượn cạnh không được qui định, và khi cần thiết, do các bên thỏa thuận.
4. Đặc tính của mặt cắt
Khối lượng, diện tích mặt cắt ngang và đặc tính của mặt cắt thép góc cạnh đều cho trong Bảng 1. Các đại lượng này được tính toán với điều kiện bán kính lượn cạnh bằng nửa bán kính lượn trong.
5. Dung sai kích thước
Dung sai kích thước trong Bảng 1 theo qui định TCVN 7571-5.

Bảng 1 – Kích thước và đặc tính mặt cắt của thép góc cạnh đều cán nóng
|
Ký hiệu |
Khối lượng |
Diện tích mặt cắt ngang |
Kích thước |
Khoảng cách từ trọng tâm |
Dung tích mặt cắt cho các trục |
|||||||||||
|
X.X = Y.Y |
U.U |
V.V |
||||||||||||||
|
kg/m |
cm2 |
A |
t |
R |
cx = cy |
cu |
cv |
lx = ly |
rx = ry |
Zx=Zy |
lu |
ru |
lv |
rv |
Zv |
|
|
(1) |
(2) |
(3) |
(4) |
(5) |
(6) |
(7) |
(8) |
(9) |
(10) |
(11) |
(12) |
(13) |
(14) |
(15) |
(16) |
(17) |
|
20 x 20 x 3 |
0,882 |
1,12 |
20 |
3 |
3,5 |
0,598 |
1,41 |
0,846 |
0,392 |
0,590 |
0,279 |
0,618 |
0,742 |
0,165 |
0,383 |
0,195 |
|
25 x 25 x 3 |
1,12 |
1,42 |
25 |
3 |
3,5 |
0,723 |
1,77 |
1,02 |
0,803 |
0,751 |
0,452 |
1,27 |
0,945 |
0,334 |
0,484 |
0,326 |
|
25 x 25 x 4 |
1,45 |
1,85 |
25 |
4 |
3,5 |
0,762 |
1,77 |
1,08 |
1,02 |
0,741 |
0,586 |
1,61 |
0,931 |
0,430 |
0,482 |
0,399 |
|
30 x 30 x 3 |
1,36 |
1,74 |
30 |
3 |
5 |
0,835 |
2,12 |
1,18 |
1,40 |
0,899 |
0,649 |
2,22 |
1,13 |
0,585 |
0,581 |
0,496 |
|
30 x 30 x 4 |
1,78 |
2,27 |
30 |
4 |
5 |
0,878 |
2,12 |
1,24 |
1,80 |
0,892 |
0,850 |
2,85 |
1,12 |
0,754 |
0,577 |
0,607 |
|
35 x 35 x 4 |
2,09 |
2,67 |
35 |
4 |
5 |
1,00 |
2,47 |
1,42 |
2,95 |
1,05 |
1,18 |
4,68 |
1,32 |
1,23 |
0,678 |
0,865 |
|
35 x 35 x 5 |
2,57 |
3,28 |
35 |
5 |
5 |
1,04 |
2,47 |
1,48 |
3,56 |
1,04 |
1,45 |
5,64 |
1,31 |
1,49 |
0,675 |
1,01 |
|
40x 40 x 3 |
1,84 |
2,35 |
40 |
3 |
6 |
1,07 |
2,83 |
1,52 |
3,45 |
1,21 |
1,18 |
5,45 |
1,52 |
1,44 |
0,783 |
0,949 |
|
40 x 40 x 4 |
2,42 |
3,08 |
40 |
4 |
6 |
1,12 |
2,83 |
1,58 |
4,47 |
1,21 |
1,56 |
7,09 |
1,52 |
1,86 |
0,777 |
1,17 |
|
40 x 40 x 5 |
2,97 |
3,79 |
40 |
5 |
6 |
1,16 |
2,83 |
1,64 |
5,43 |
1,20 |
1,91 |
8,60 |
1,51 |
2,26 |
0,773 |
1,38 |
|
45 x 45 x 4 |
2,74 |
3,49 |
45 |
4 |
7 |
1,23 |
3,18 |
1,75 |
6,43 |
1,36 |
1,97 |
10,2 |
1,71 |
2,68 |
0,876 |
1,53 |
|
45 x 45 x 5 |
3,38 |
4,30 |
45 |
5 |
7 |
1,28 |
3,18 |
1,81 |
7,84 |
1,35 |
2,43 |
12,4 |
1,70 |
3,26 |
0,871 |
1,80 |
|
50 x 50 x 4 |
3,06 |
3,89 |
50 |
4 |
7 |
1,36 |
3,54 |
1,92 |
8,97 |
1,52 |
2,46 |
14,2 |
1,91 |
3,73 |
0,979 |
1,94 |
|
50 x 50 x 5 |
3,77 |
4,80 |
50 |
5 |
7 |
1,40 |
3,54 |
1,99 |
11,0 |
1,51 |
3,05 |
17,4 |
1,90 |
4,55 |
0,973 |
2,29 |
|
50 x 50 x 6 |
4,47 |
5,69 |
50 |
6 |
7 |
1,45 |
3,54 |
2,04 |
12,8 |
1,50 |
3,61 |
20,3 |
1,89 |
5,34 |
0,968 |
2,61 |
|
60 x 60 x 5 |
4,57 |
5,82 |
60 |
5 |
8 |
1,64 |
4,24 |
2,32 |
19,4 |
1,82 |
4,45 |
30,7 |
2,30 |
8,03 |
1,17 |
3,46 |
|
60 x 60 x 6 |
5,42 |
6,91 |
60 |
6 |
8 |
1,69 |
4,24 |
2,39 |
22,8 |
1,82 |
5,29 |
36,1 |
2,29 |
9,44 |
1,17 |
3,96 |
|
60 x 60 x 8 |
7,09 |
9,03 |
60 |
8 |
8 |
1,77 |
4,24 |
2,50 |
29,2 |
1,80 |
6,89 |
46,1 |
2,26 |
12,2 |
1,16 |
4,86 |
|
65 x 65 x 6 |
5,91 |
7,53 |
65 |
6 |
9 |
1,80 |
4,60 |
2,55 |
29,2 |
1,97 |
6,21 |
46,3 |
2,48 |
12,1 |
1,27 |
4,74 |
|
65 x 65 x 8 |
7,73 |
9,85 |
65 |
8 |
9 |
1,89 |
4,60 |
2,67 |
37,5 |
1,95 |
8,13 |
59,4 |
2,46 |
15,6 |
1,26 |
5,84 |
|
70 x 70 x 6 |
6,38 |
8,13 |
70 |
6 |
9 |
1,93 |
4,95 |
2,73 |
36,9 |
2,13 |
7,27 |
58,5 |
2,68 |
15,3 |
1,37 |
5,60 |
|
70 x 70 x 7 |
7,38 |
9,40 |
70 |
7 |
9 |
1,97 |
4,95 |
2,79 |
42,3 |
2,12 |
8,41 |
67,1 |
2,67 |
17,5 |
1,36 |
6,28 |
|
75 x 75 x 6 |
6,85 |
8,73 |
75 |
6 |
9 |
2,05 |
5,30 |
2,90 |
45,8 |
2,29 |
8,41 |
72,7 |
2,89 |
18,9 |
1,47 |
6,53 |
|
75 x 75 x 8 |
8,99 |
11,4 |
75 |
8 |
9 |
2,14 |
5,30 |
3,02 |
59,1 |
2,27 |
11,0 |
93,8 |
2,86 |
24,5 |
1,46 |
8,09 |
|
80 x 80 x 6 |
7,34 |
9,35 |
80 |
6 |
10 |
2,17 |
5,66 |
3,07 |
55,8 |
2,44 |
9,57 |
88,5 |
3,08 |
23,1 |
1,57 |
7,56 |
|
80 x 80 x 8 |
9,63 |
12,3 |
80 |
8 |
10 |
2,26 |
5,66 |
3,19 |
72,2 |
2,43 |
12,6 |
115 |
3,06 |
29,9 |
1,56 |
9,37 |
|
80 x 80 x 10 |
1,19 |
15,1 |
80 |
10 |
10 |
2,34 |
5,66 |
3,30 |
87,5 |
2,41 |
15,4 |
139 |
3,03 |
36,4 |
1,55 |
11,0 |
|
90 x 90 x 7 |
9,61 |
12,2 |
90 |
7 |
11 |
2,45 |
6,36 |
3,47 |
92,5 |
2,75 |
14,1 |
147 |
3,46 |
38,3 |
1,77 |
11,0 |
|
90 x 90 x 8 |
10,9 |
13,9 |
90 |
8 |
11 |
2,50 |
6,36 |
3,53 |
104 |
2,74 |
16,1 |
166 |
3,45 |
43,1 |
1,76 |
12,2 |
|
90 x 90 x 9 |
12,2 |
15,5 |
90 |
9 |
11 |
2,54 |
6,36 |
3,59 |
116 |
2,73 |
17,9 |
184 |
3,44 |
47,9 |
1,76 |
13,3 |
|
90 x 90 x 10 |
15,0 |
17,1 |
90 |
10 |
11 |
2,58 |
6,36 |
3,65 |
127 |
2,72 |
19,8 |
201 |
3,42 |
52,6 |
1,75 |
14,4 |
|
100 x 100 x 8 |
12,2 |
15,5 |
100 |
8 |
12 |
2,74 |
7,07 |
3,87 |
145 |
3,06 |
19,9 |
230 |
3,85 |
59,9 |
1,96 |
15,5 |
|
100 x 100 x 10 |
15,0 |
19,2 |
100 |
10 |
12 |
2,82 |
7,07 |
3,99 |
177 |
3,04 |
24,6 |
280 |
3,83 |
73,0 |
1,95 |
18,3 |
|
100 x 100 x 12 |
17,8 |
22,7 |
100 |
12 |
12 |
2,90 |
7,07 |
4,11 |
207 |
3,02 |
29,1 |
328 |
3,80 |
85,7 |
1,94 |
20,9 |
|
120 x 120 x 8 |
14,7 |
18,7 |
120 |
8 |
13 |
3,23 |
8,49 |
4,56 |
255 |
3,69 |
29,1 |
405 |
4,65 |
105 |
2,37 |
23,1 |
|
120 x 120 x 10 |
18,2 |
23,2 |
120 |
10 |
13 |
3,31 |
8,49 |
4,69 |
313 |
3,67 |
36,0 |
497 |
4,63 |
129 |
2,36 |
27,5 |
|
120 x 120 x 12 |
21,6 |
27,5 |
120 |
12 |
13 |
3,40 |
8,49 |
4,80 |
368 |
3,65 |
42,7 |
584 |
4,60 |
152 |
2,35 |
31,6 |
|
125 x 125 x 8 |
15,3 |
19,5 |
125 |
8 |
13 |
3,35 |
8,84 |
4,74 |
290 |
3,85 |
31,7 |
461 |
4,85 |
120 |
2,47 |
25,3 |
|
125 x 125 x 10 |
19,0 |
24,2 |
125 |
10 |
13 |
3,44 |
8,84 |
4,86 |
356 |
3,84 |
39,3 |
565 |
4,83 |
146 |
2,46 |
30,1 |
|
125 x 125 x 12 |
22,6 |
28,7 |
125 |
12 |
13 |
3,52 |
8,84 |
4,98 |
418 |
3,81 |
46,6 |
664 |
4,81 |
172 |
2,45 |
34,6 |
|
150 x 150 x 10 |
23,0 |
29,3 |
150 |
10 |
16 |
4,03 |
10,6 |
5,71 |
624 |
4,62 |
56,9 |
990 |
5,82 |
258 |
2,97 |
45,1 |
|
150 x 150 x 12 |
27,3 |
34,8 |
150 |
12 |
16 |
4,12 |
10,6 |
5,83 |
737 |
4,60 |
67,7 |
1170 |
5,80 |
303 |
2,96 |
52,0 |
|
150 x 150 x 15 |
33,8 |
43,0 |
150 |
15 |
16 |
4,25 |
10,6 |
6,01 |
898 |
4,57 |
83,5 |
1430 |
5,76 |
370 |
2,93 |
61,6 |
|
180 x 180 x 15 |
40,9 |
52,1 |
180 |
15 |
18 |
4,98 |
12,7 |
7,05 |
1590 |
5,52 |
122 |
2520 |
6,96 |
653 |
3,54 |
92,7 |
|
180 x 180 x 18 |
48,6 |
61,9 |
180 |
18 |
18 |
5,10 |
12,7 |
7,22 |
1870 |
5,49 |
145 |
2960 |
6,92 |
768 |
3,52 |
106 |
|
200 x 200 x 16 |
48,5 |
61,8 |
200 |
16 |
18 |
5,52 |
14,1 |
7,81 |
2340 |
6,16 |
162 |
3720 |
7,76 |
960 |
3,94 |
123 |
|
200 x 200 x 20 |
59,9 |
76,3 |
200 |
20 |
18 |
5,68 |
14,1 |
8,04 |
2850 |
6,11 |
199 |
4530 |
7,70 |
1170 |
3,92 |
146 |
|
200 x 200 x 24 |
71,1 |
90,6 |
200 |
24 |
18 |
5,84 |
14,1 |
8,26 |
3330 |
6,06 |
235 |
5280 |
7,64 |
1380 |
3,90 |
167 |
|
250 x 250 x 28 |
104 |
133 |
250 |
28 |
18 |
7,24 |
17,7 |
10,2 |
7700 |
7,62 |
433 |
12200 |
9,61 |
3170 |
4,89 |
309 |
|
250 x 250 x 35 |
128 |
163 |
250 |
35 |
18 |
7,50 |
17,7 |
10,6 |
9260 |
7,54 |
529 |
14700 |
9,48 |
3860 |
4,87 |
364 |
|
CHÚ THÍCH 1. Theo thỏa thuận có thể lựa chọn các kích thước đáp ứng các yêu cầu. Đối với thép góc được chọn như vậy, chỉ có chiều dầy được cán trên máy cán đáp ứng được yêu cầu của người sử dụng được lựa chọn từ các chiều dày tương ứng với thép góc cạnh đều cho trong Bảng 1. 2. Diện tích mặt cắt ngang được tính theo công thức: S = [t(2A – t)
+ 0,2146 ( Trong đó: S là diện tích mặt cắt ngang, tính bằng centimét vuông; t là chiều dầy cạnh, tính bằng centimét; R là bán kính lượn trong, tính bằng milimét; r là bán kính lượn cạnh, tính bằng milimét; A là chiều rộng cạnh, tính bằng milimét. 3. Khối lượng được tính với khối lượng riêng của thép bằng 7,85 kg/ dm3. 4. Ví dụ ký hiệu qui ước của thép góc cạnh đều cán nóng có kích thước L 40 x 40 x 4 TCVN 7571-1 : 2006 (ISO 567-1) |
||||||||||||||||